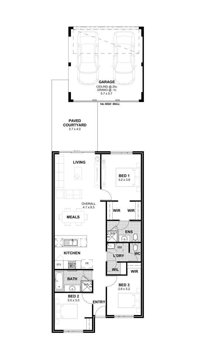
The Weir

A 7.5m narrow-block home with three bedrooms and a master suite with dual walk-in robes.

3 bed 2 bath 7.5m wide
Total area: 158m2

The Weir is designed specifically for 7.5 metre frontage blocks, proving a compact site can still deliver a comfortable and stylish layout. Three well-planned bedrooms include a master suite with dual walk-in robes for added storage.

Its arrangement makes efficient use of space while maintaining the features expected in a modern home.

Inclusions

  • Stone benchtops – 0% Silica
  • 25 year structural guarantee
  • Chrome flickmixer taps
  • Quality WA made Kitchen, measured to fit
  • Soft close drawers to cabinetry
  • Quality stainless steel appliances
  • Full flooring and window treatment package
  • Carpeting to bedroom

Get Started with The Weir

Get in touch with us to learn about how we can get you a location for your build. We have house and land packages all over Perth to choose from.

More Designs to Choose From