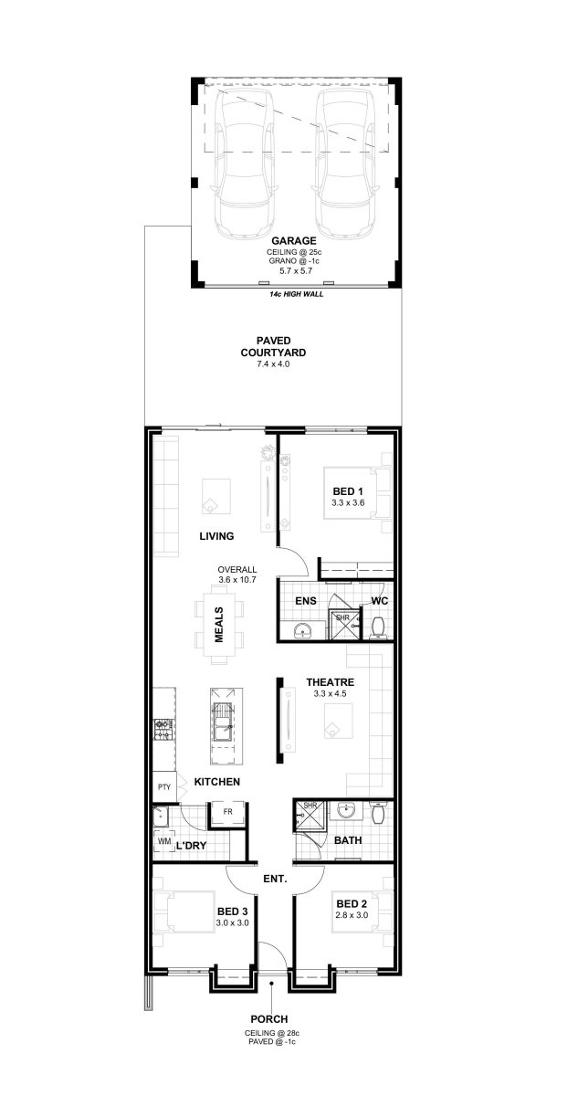
The Lachlan

A compact-block three-bedroom home with open-plan living and a dedicated theatre room.

3 bed 2 bath 7.5m wide
Total area: 189m2

The Lachlan stands out with a smart layout designed to maximise comfort on a compact block. Offering three well-proportioned bedrooms and two bathrooms, it suits new and growing families.

A modern open-plan living area forms the heart of the home, complemented by a separate theatre room, giving the design both everyday practicality and a space to relax.

Inclusions

  • Stone benchtops – 0% Silica
  • 25 year structural guarantee
  • Chrome flickmixer taps
  • Quality WA made Kitchen, measured to fit
  • Soft close drawers to cabinetry
  • Quality stainless steel appliances
  • Full flooring and window treatment package
  • Carpeting to bedroom

Get Started with The Lachlan

Get in touch with us to learn about how we can get you a location for your build. We have house and land packages all over Perth to choose from.

More Designs to Choose From