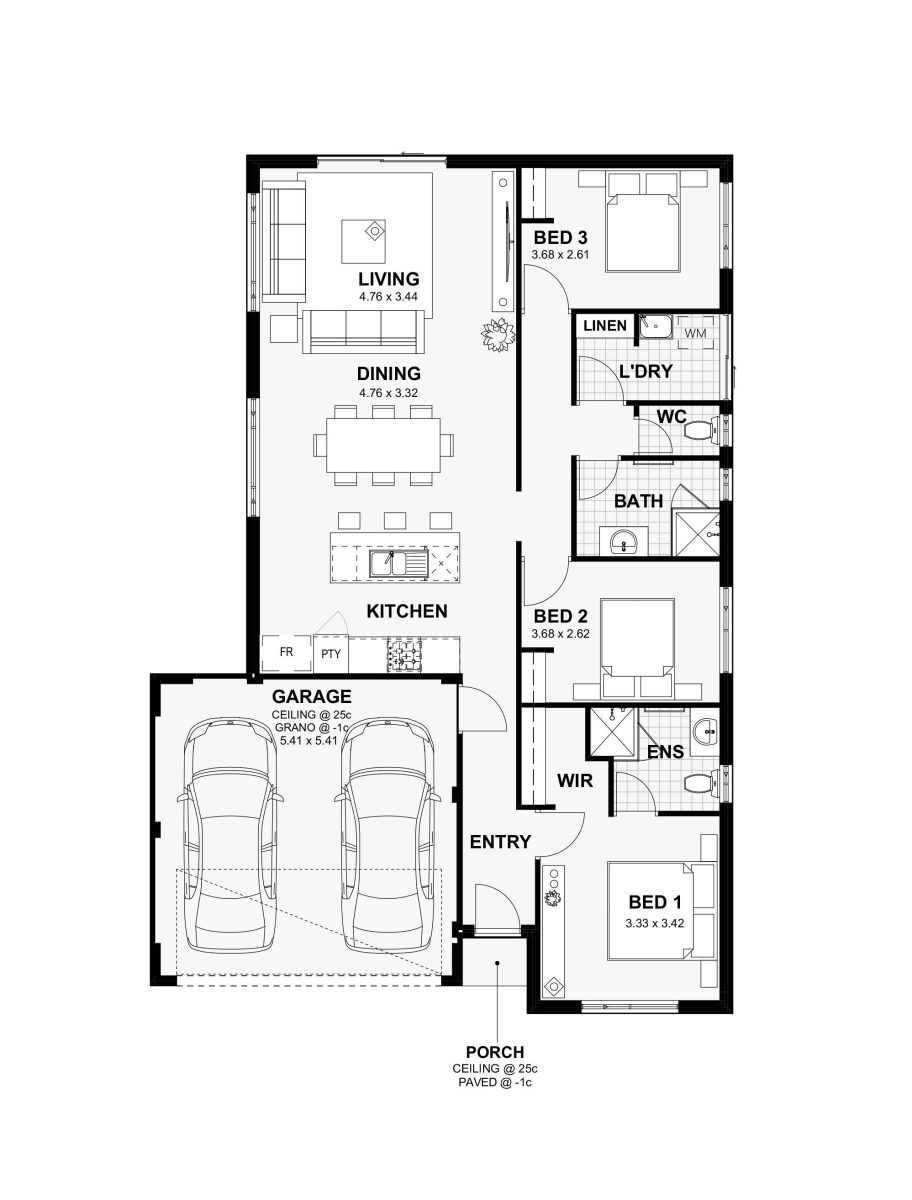
2The Oakover

A value-focused first-home design with open-plan living and a private master retreat.

3 bed 2 bath 12.5m wide
Total area: 150.6m2

The Oakover delivers strong value with a layout that covers the essentials for first home buyers. Designed to remain budget friendly, it provides a practical step into home ownership without unnecessary extras.

An open-plan living area forms the heart of the home, complemented by a private master suite and two additional bedrooms serviced by a shared bathroom.

Inclusions

  • Stone benchtops – 0% Silica
  • 25 year structural guarantee
  • Chrome flickmixer taps
  • Quality WA made Kitchen, measured to fit
  • Soft close drawers to cabinetry
  • Quality stainless steel appliances
  • Full flooring and window treatment package
  • Carpeting to bedroom

Get Started with 2The Oakover

Get in touch with us to learn about how we can get you a location for your build. We have house and land packages all over Perth to choose from.

More Designs to Choose From